• 九游会j9,九游会j9官网,九游会j9平台,九游会j9官方网站

    Cn
    News

    NEWS

    【DESIGN】杉杉德信·江湾城示范区实景美学赏鉴

    Release Date:2021.11.17

    Author:Dexin Group

     

     

     

    千年传承,滋养了常山的文化与气韵,厚重历史的积淀,随着常山江水绵延曲长。“山水相融,城在园中”,水脉之上,杉杉德信·江湾城孕育而生,在人文与自然间,构建趋于时代脉搏之上的人居空间。

     

    以城市肌理为设计原点,将自然意象隐藏在空间秩序内,运用克制而轻柔的手法,勾勒出一个流动的生活场域。


    01


    MEMORY

    山石有忆

    -

    空间建立的想象

    在自然之上 于细末之间

     

    入口以弧形围合

    虚化了人与空间的情感界限

    前厅在不同构成的块面间

    形成利落简明的格局


    大理石交织的纹理和清雅的底色

    诠释了自然元素

    在特定秩序下形成的感官体验 

     

    -

     

     

    前台一侧仿铜不锈钢错落排列的格栅

    在引入自然光源的同时

    也带来了更多绰影的想象

     

    角落一隅被半包裹的金属雕塑

    如风随影

    用山石的形态定格了流动的记忆

    灵动且深远

     

     

     

    02


    TOTALLY NATURAL

    水若天成

    -

    点线和面构成的空间

    永不落俗套

    沙盘区漫射的光影

    来自如银河星光排布组合的灯具阵列

     

    在半空勾划出和谐优美的弧线

    顶面不锈钢和地面大理石

    共同营造的视觉场域

     

    移步异景间

    反射出动态的水光留影 江水粼粼

    在彼此的对话中产生交互的美学引力 

     

    -

     

     

     

    03


     

    OVERLAP THE SYMBIOTIC

    交叠共生

    -

    山水之间

    共生出人与自然的彼此对谈

     

    洽谈区与沙盘区

    以悬空几何块面为分界

    上半部分沿用了金属格栅

    各区间断而不离

     

    商谈区域中轴对称

    分类而置从家具的配置和

    陈设的细节上形成区隔

     

    整体延续暖灰色调

    点缀的绿色从装饰到家居相呼应


    -


     

     

     

     

    两侧利用大面积落地玻璃

    引入自然光线

    开阔的视野使感知更为轻缓松弛

     

    同时利用通透的展示柜

    增强了空间节奏

     

    -

     

     

     

     

    深色木制吊顶形成的视觉反差

    使水吧台融于致雅的气氛中

    让整体更加赋有质感

     

    三面仿铜不锈钢

    在虚实间反映了空间的存在关系

    趋于复古 显露时尚

     

    砖石肌理的墙面

    为厚重的历史记忆印刻形态

    着力而不宣张

     

    -

     


     

     

    城市的记忆

    自然的形态

     

    杉杉德信·江湾城

    在厚重的历史中撷取滋养

    将人文意识化作设计语言

    共生出婉娈轻灵的生活质地

     

    -

     

     

      04


     

    ANALYSIS DIAGRAM

    分析图

     -

     

     

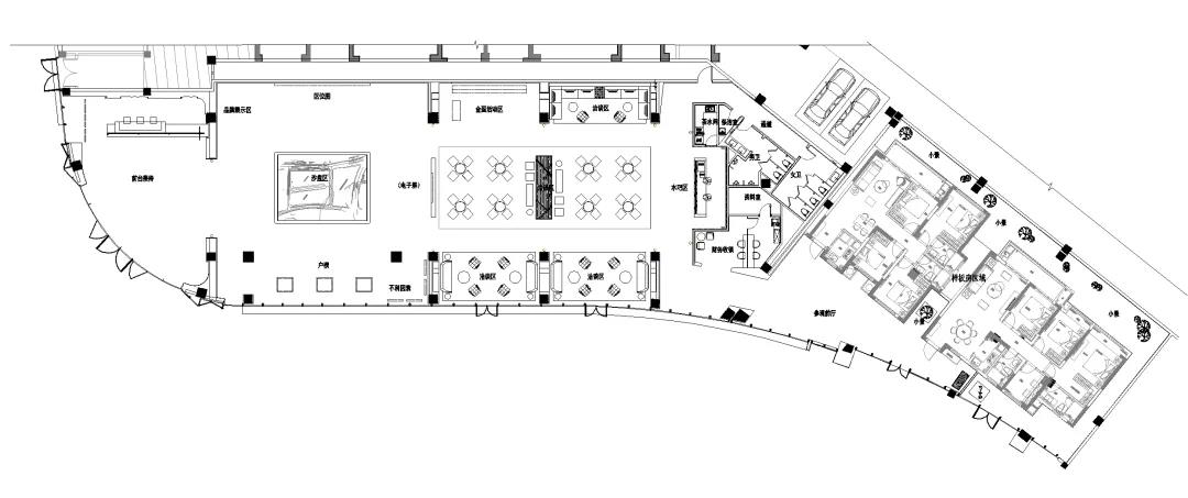
    平面图 

     

    INFO

     

    - 项目名称 -杉杉德信 · 江湾城 

    - 业主单位 -

    德信产商文集团

     

    - 设计机构 -GFD广飞设计

     

    - 设计总监 -

    叶飞


    - 设计团队 -

    郭艳 沈伟

     

    - 软装单位 -

    千渡家居

     

    - 软装团队 -

    蔡杨阳  姜周  路欣依

     

    - 室内面积 -1075㎡
    - 项目摄影-顽伴摄影
    -

    Return
    0571-85831088
    九游会j9